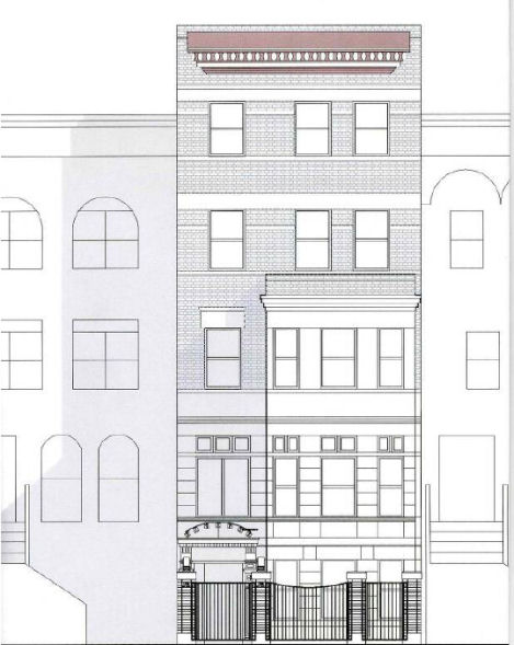
1296 Dean St.

This is a 5 story brownstone in Brooklyn for which Devon was retained to renovate the exterior and redesign all of the units in preparation for their conversion to a condominium.